Trilocale in vendita

Savignano Sul Rubicone, Via Gorizia
€ 198.000
3 locali 3 locali
74 Mq 74 Mq
2 bagni 2 bagni

Trilocale in vendita

Savignano Sul Rubicone, Via Gorizia

Descrizione annuncio

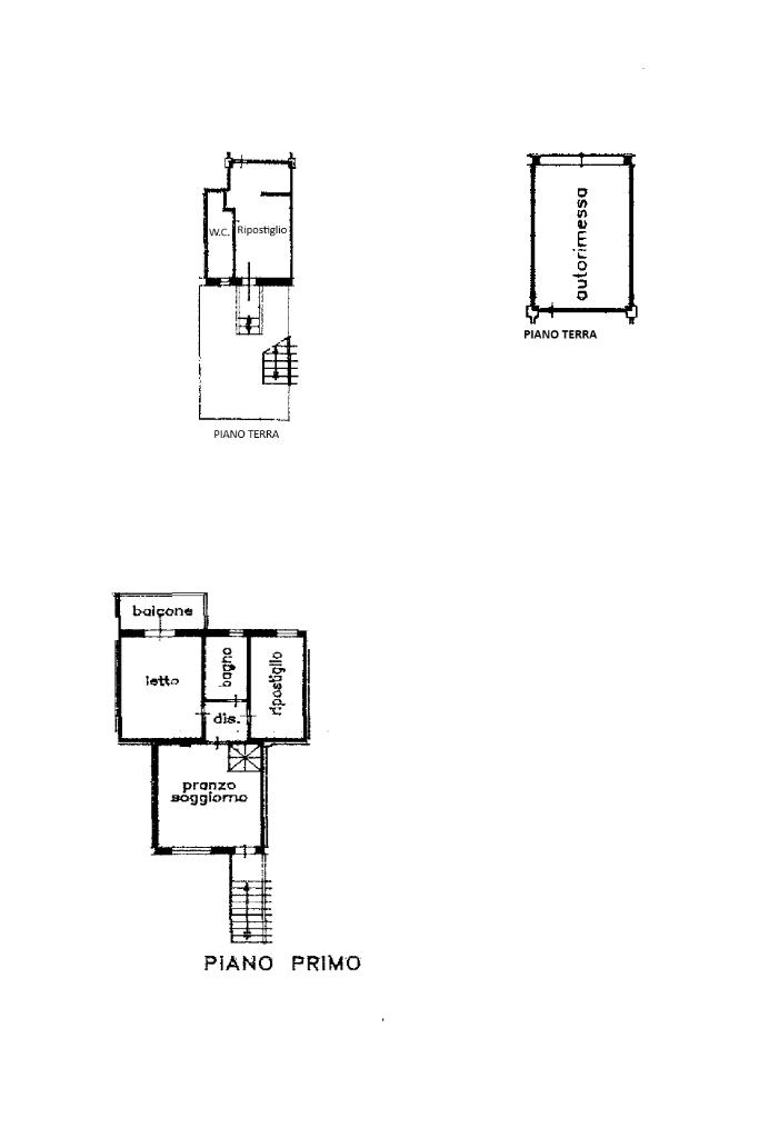
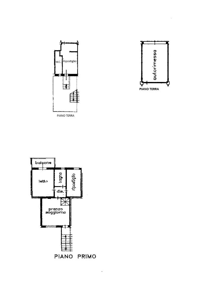
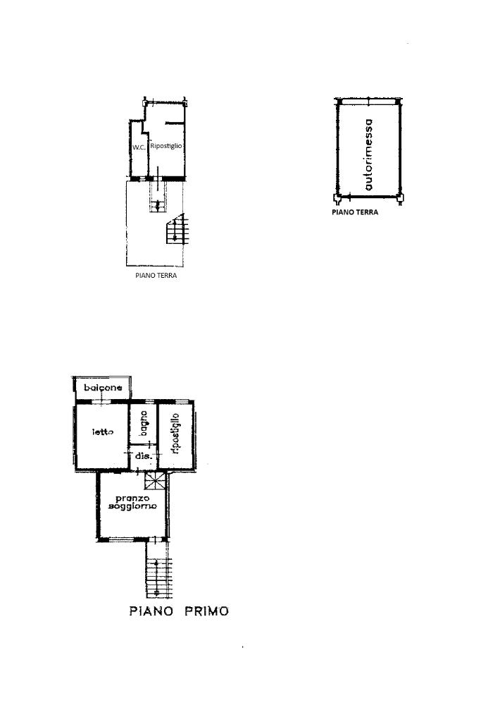
SAVIGNANO SUL RUBICONE: Nel quartiere di valle ferrovia vicino a tutti i servizi principali su strada chiusa appartamento trilocale con ingresso indipendente e corte esclusiva.

Entrando dal cancello veniamo accolti dalla corte esclusiva di 21 mq che da l’accesso al piano terra e al piano primo.

L’appartamento si sviluppa su due livelli, entrando al piano primo abbiamo un luminoso soggiorno di 21 mq e proseguendo troviamo un disimpegno che ci accompagna nella zona notte composta da una camera matrimoniale di 17 mq con accesso al balcone di 5,5 mq , proseguendo si trova un bagno finestrato e una camera singola.

Scendendo al piano terra grazie a una comoda scala interna, troviamo la zona servizi composta da una accogliente tavernetta di 21 mq, un secondo bagno anch’esso finestrato.
Il garage attualmente viene utilizzato come zona di relax e lettura.

Grazie all’indipendenza di cui gode questa casa le spese condominiali di euro 250 all’anno sono comprensive di pulizia dei pozzetti e luci esterne .

L'abitazione è completa di tenda elettrica ideale per ombreggiare il giardino d'estate.

Per maggiori informazioni contattateci al 3701542540 o alla mail fo2r5.

Mostra tutto

Nelle vicinanze

Trasporto pubblico Trasporto pubblico
Galvani
Galvani
230 m
FS
FS
250 m
Savignano
Savignano
170 m
Scuole Scuole
Scuole
240 m
Dante Alighieri
500 m
Istituto Tecnico Industriale
1,2 Km
Scuola media "G. Pascoli"
1,4 Km
Scuola Media G. Pascoli
1,5 Km
Farmacia Farmacia
Salute e Benessere insieme
690 m
Parafarmacia San Mauro
1,3 Km
Farmacia "Magnanelli"
1,5 Km
Farmacia San Rocco
2,1 Km
Ospedali Ospedali
Ospedali
320 m
Supermercati Supermercati
Supermercati
390 m
Conad
630 m
Lidl
840 m
Negozi Negozi
SGT corriere
900 m
Forno Pasticceria "F.lli Camilletti"
1,4 Km
Rosticceria
1,4 Km
Alimentari "Marcello" di Zani Enrico
1,4 Km
Merceria Puntaspilli
1,4 Km
Bar Bar
Bar Sport
770 m
Gelateria "Pinguino"
1,4 Km
Bar
1,4 Km
Bar/Pasticceria/Gelateria "Mimosa"
1,4 Km
Caffè "La Madeleine"
1,5 Km
Ristoranti Ristoranti
Sottomarino Giallo
640 m
Il Grottino
890 m
Pizzeria Da Ettore
910 m
Pizzeria da Ettore
920 m
L'Angolo della piadina
920 m
Mostra tutto

Caratteristiche

Rif.:
61151977
Piano:
1 di 2 (Piano rialzato)
Box:
1
Balconi:
1
Camere da letto:
2
Arredamento:
Assente
Mostra tutto
Prezzo Prezzo
€ 198.000
Rata mutuo Rata mutuo
€ 938 / mese
Spese annue Spese annue
€ 250
Proponi il tuo prezzoProponi il tuo prezzo

Classe Energetica

Questo immobile è esente da classe energetica
Anno di costruzione:
2003
Riscaldamento:
Autonomo
Tipo impianto:
A radiatori
Tipo alimentazione:
Metano

Ti interessa visionare l'immobile?

Fissa un appuntamento  Fissa un appuntamento

Richiedi informazioni

Clicca su Leggi per aprire l'informativa
* Questi campi sono obbligatori

Calcola il tuo mutuo

Semplice e senza impegno
Anticipo

( % )
Mutuo

( % )

pochi semplici passi

inserisci i tuoi dati
Questionario completato
Grazie per aver richiesto un appuntamento senza impegno con un nostro Consulente del Credito e Assicurativo.

Hai inserito correttamente tutti i dati necessari e a breve riceverai una e-mail con un link da convalidare per inviare i tuoi dati.
Affiliato
Studio Neda Srl
Corso Vendemini, 11 47039 Savignano Sul Rubicone (FC)

Il nostro staff


  • Nicola Botturi
    Affiliato

  • Mirea Crescente
    Collaboratrice

  • Denys Zhytarchuk
    Collaboratore
Corso Vendemini, 11 47039 Savignano Sul Rubicone (FC)
Zona: Savignano Sul Rubicone-Borghi-Sogliano-Roncofreddo
Mostra su mappa
Orari: Dal lunedì al venerdì dalle ore 9 alle ore 13 e dalle ore 15 alle 19.30; sabato dalle ore 9 alle ore 12.30, pomeriggio su appuntamento
Affiliato
Studio Neda Srl
Corso Vendemini, 11 47039 Savignano Sul Rubicone (FC)

2026 Tecnocasa Franchising S.p.A. - P. IVA 08365160152 - Via Monte Bianco 60/A 20089 Rozzano (MI). Ogni agenzia ha un proprio titolare ed è autonoma. Privacy policy | Policy utilizzo | Cookie policy