Trilocale in vendita

Savignano Sul Rubicone, Via firenze
€ 330.000
3 locali 3 locali
129 Mq 129 Mq
3 bagni 3 bagni

Trilocale in vendita

Savignano Sul Rubicone, Via firenze

Descrizione annuncio

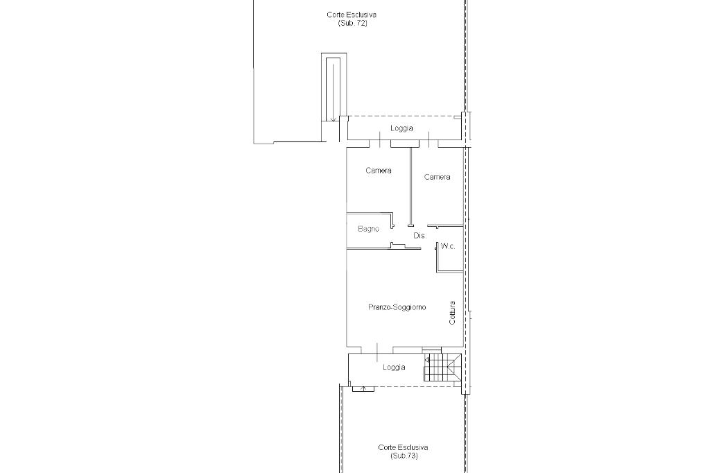
Savignano sul Rubicone: appartamento del 2023 in classe A4 al piano terra con ingresso indipendente e tecnologie di ultima generazione.

Proponiamo in vendita un appartamento di recente costruzione, situato al piano terra e caratterizzato da un ingresso indipendente ideale per chi cerca privacy, comfort e modernità.

L’ingresso si apre su una corte privata di 30mq rifinita con erba sintetica con illuminazione automatica già installata perfetta per momenti di relax all’aperto.

Da qui si accede all’abitazione tramite una porta vetrata con infissi nuovi e performanti con zanzariere che garantiscono isolamento e luminosità.

All’interno troviamo una luminosa e accogliente zona living open space di 35mq composta da un soggiorno armonioso affiancato da una cucina moderna con penisola.

L’ambiente è impreziosito da un’ottima esposizione alla luce naturale e dotato di aria condizionata con climatizzatore refrigerante in A+++.

Un pratico disimpegno conduce alla zona notte in cui troviamo il bagno principale finestrato e luminoso rifinito con gusto e completo di un moderno box doccia, un secondo bagno dotato di box doccia e utilizzato anche come lavanderia.

La zona notte si completa con una camera matrimoniale di 16mq spaziosa e elegante perfetta per garantire il massimo comfort e una camera singola di 12 mq ideale come stanza per bambini, studio o ospiti.

Entrambe le camere godono di accesso diretto alla seconda corte privata sul retro di 60mq, uno spazio esterno ampio e riservato perfetto per organizzare pranzi e cene estive.

Dalla loggia di accesso si scende al piano seminterrato dove sono presenti un ampio garage di 44mq con un ulteriore cantina e bagno di servizio.

L’immobile è dotato di pompa di calore, termo cappotto, riscaldamento a pavimento, impianto fotovoltaico e VMC ( ventilazione meccanica) e per una ulteriore sicurezza è dotato di antifurto con sensori e telecamere annesse.

Soluzione abitativa moderna, curata nei dettagli e pronta da vivere, ideale per chi desidera un ambiente raffinato e dotato di tutti i comfort più recenti.

Per maggiori informazioni contattateci al 3701542540 o alla mail fo2r5

Mostra tutto

Nelle vicinanze

Trasporto pubblico Trasporto pubblico
FS
FS
130 m
Galvani
Galvani
170 m
Savignano
Savignano
60 m
Scuole Scuole
Scuole
190 m
Dante Alighieri
420 m
Istituto Tecnico Industriale
1,1 Km
Scuola media "G. Pascoli"
1,5 Km
Scuola Media G. Pascoli
1,5 Km
Farmacia Farmacia
Salute e Benessere insieme
710 m
Parafarmacia San Mauro
1,4 Km
Farmacia "Magnanelli"
1,5 Km
Farmacia San Rocco
2,0 Km
Ospedali Ospedali
Ospedali
300 m
Supermercati Supermercati
Supermercati
420 m
Conad
520 m
Lidl
940 m
Negozi Negozi
SGT corriere
1,0 Km
Forno Pasticceria "F.lli Camilletti"
1,4 Km
Rosticceria
1,5 Km
Alimentari "Marcello" di Zani Enrico
1,5 Km
Merceria Puntaspilli
1,5 Km
Bar Bar
Bar Sport
660 m
Gelateria "Pinguino"
1,4 Km
Bar
1,4 Km
Bar/Pasticceria/Gelateria "Mimosa"
1,5 Km
Caffè "La Madeleine"
1,5 Km
Ristoranti Ristoranti
Sottomarino Giallo
540 m
Il Grottino
790 m
Pizzeria Il Borgo
900 m
Pizzeria Da Ettore
1,0 Km
Pizzeria da Ettore
1,0 Km
Mostra tutto

Caratteristiche

Rif.:
61205272
Piano:
Terra con giardino
Box:
1
Camere da letto:
2
Arredamento:
Completo
Condizionamento:
Predisposizione impianto
Mostra tutto
Prezzo Prezzo
€ 330.000
Rata mutuo Rata mutuo
€ 1.564 / mese
Spese annue Spese annue
€ 550
Proponi il tuo prezzoProponi il tuo prezzo

Classe Energetica

A4
A4
A4
A4
A4
A4
A4
A4
A4
EP invernale del fabbricato:
EP estiva del fabbricato:
Anno di costruzione:
2023
Riscaldamento:
Autonomo
Tipo impianto:
A pavimento
Tipo alimentazione:
Pannelli

Ti interessa visionare l'immobile?

Fissa un appuntamento  Fissa un appuntamento

Richiedi informazioni

Clicca su Leggi per aprire l'informativa
* Questi campi sono obbligatori

Calcola il tuo mutuo

Semplice e senza impegno
Anticipo

( % )
Mutuo

( % )

pochi semplici passi

inserisci i tuoi dati
Questionario completato
Grazie per aver richiesto un appuntamento senza impegno con un nostro Consulente del Credito e Assicurativo.

Hai inserito correttamente tutti i dati necessari e a breve riceverai una e-mail con un link da convalidare per inviare i tuoi dati.
Affiliato
Studio Neda Srl
Corso Vendemini, 11 47039 Savignano Sul Rubicone (FC)

Il nostro staff


  • Nicola Botturi
    Affiliato

  • Mirea Crescente
    Collaboratrice

  • Denys Zhytarchuk
    Collaboratore
Corso Vendemini, 11 47039 Savignano Sul Rubicone (FC)
Zona: Savignano Sul Rubicone-Borghi-Sogliano-Roncofreddo
Mostra su mappa
Orari: Dal lunedì al venerdì dalle ore 9 alle ore 13 e dalle ore 15 alle 19.30; sabato dalle ore 9 alle ore 12.30, pomeriggio su appuntamento
Affiliato
Studio Neda Srl
Corso Vendemini, 11 47039 Savignano Sul Rubicone (FC)

2026 Tecnocasa Franchising S.p.A. - P. IVA 08365160152 - Via Monte Bianco 60/A 20089 Rozzano (MI). Ogni agenzia ha un proprio titolare ed è autonoma. Privacy policy | Policy utilizzo | Cookie policy